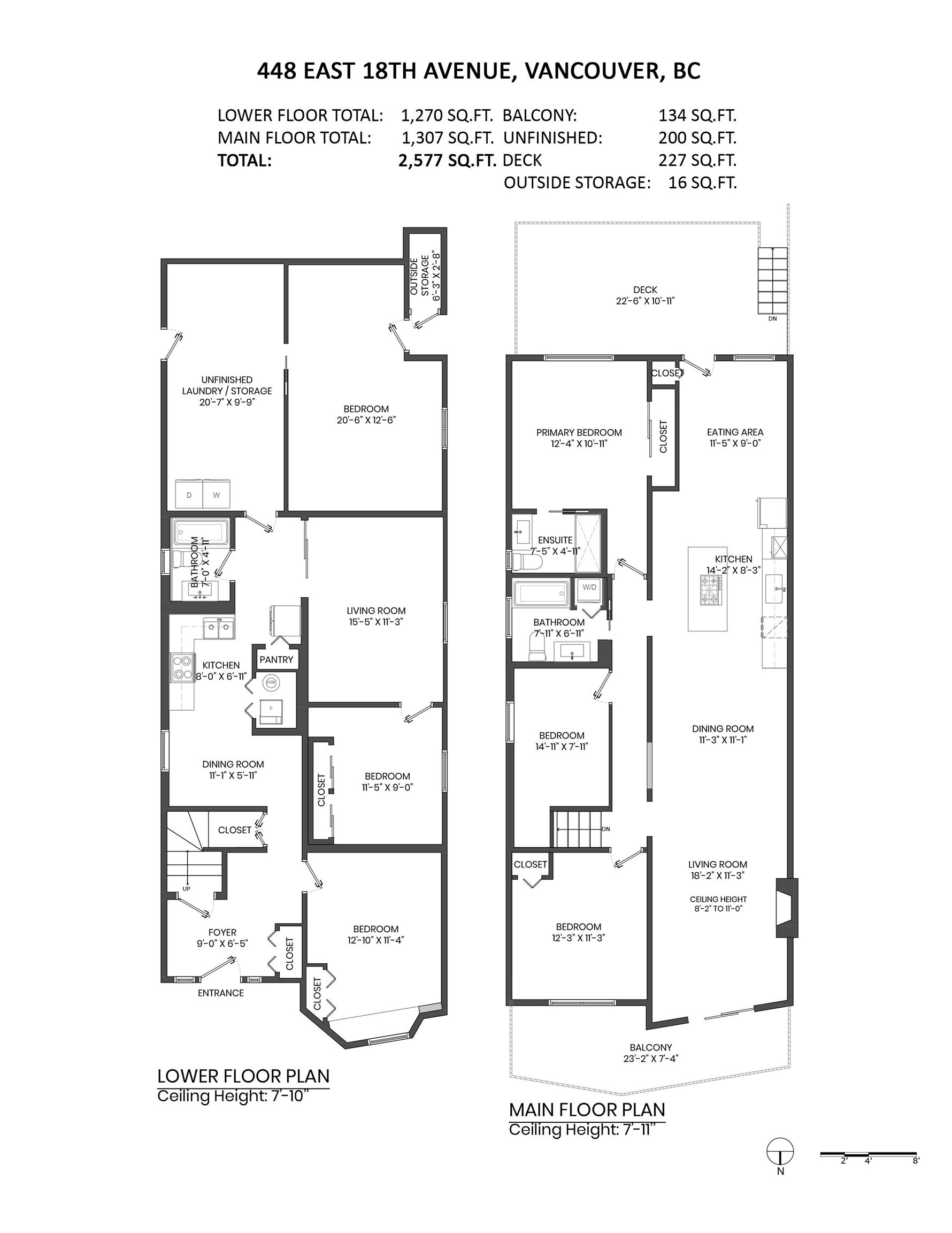
$2,099,888
448 E 18th Avenue
Sold
More information
Features & amenities
- Central Location
- Recreation Nearby
- Shopping Nearby
Additional details
- MLS® # R2906407
- Type House
- Subtype House/Single Family
Listing is presented by
Matt Grenaghan PREC* | Vancouver Real Estate Advisor
Macdonald Realty